Skip to content
  • О компании
    • О компании
      • Почему мы
      • История компании Эко-тех
      • Участие в выставках
      • Партнеры
      • Отзывы наших клиентов о компании Эко-тех
      • Цены на материалы
    • Как мы работаем
      • Заготовка леса
      • Проектирование
      • Строительство
      • Отделочные работы
      • Внутренние инженерные сети и монтаж оборудования
    • Наша команда
      • Наши вакансии
    • Полезная информация
      • Часто задаваемые вопросы по строительству и отделке домов и бань из дерева
      • Наши статьи
      • Остерегайтесь недобросовестных застройщиков торгующих не своими проектами
      • В чём отличие домов, построенных компанией «Эко-тех», от других строительных компаний?
    • Акции и специальные предложения
      • Новости
ecotechstroy.ruecotechstroy.ruecotechstroy.ru
  • Проекты

    Дома из клеенного бруса

    Каркасные дома

    Дома из оцилиндрованного бревна

    Дома и бани ручной рубки

    Посмотреть все проекты
  • Наше производство
  • Портфолио
    ФОТО И ВИДЕО ПОСТРОЕННЫХ ПРОЕКТОВ ЭКО-ТЕХ
    Видео проектов
    Фото: Построенные дома и бани
    Выставочные площадки
    Производство ЭКО-ТЕХ: фото, видео
    Этапы строительства
    Отделка и коммуникации
    Посмотреть все материалы
    Видео, проект Заречье, на выставочной площадке 51км, материал оцилиндрованное бревно
    Элегантность на крыльях птицы: роскошный дом и другие объекты из бруса в обзоре с архитектором
    Эко-тех проект Ньютон рубленное бревно
    Дом из рубленного бревна по проекту Ньютон
    Дом из клееного бруса по проекту Беловежская пуща- Фото
    Обзор с инженером дома 264 м2 из клееного бруса, построенного компанией Экотехстрой
    Дом по проекту Верея из клееного бруса- Фото
    Дом из оцилиндрованного бревна «Домик в деревне»- Фото
    Фото деревянный двухэтажный дом из клееного бруса по проекту "Вольтер"
    Дом из клееного бруса по проекту «Вольтер» — фото
    Эко-тех проект Чернигов оцилиндрованное бревно
    Дом из оцилиндрованного бревна по проекту Чернигов
  • Услуги

    УСЛУГИ ЭКО-ТЕХ

    Строительство

    Проектирование домов и бань

    Внутренние инженерные сети и монтаж оборудования

    Отделочные работы

    Продажа пиломатериалов

    Внутренние инженерные сети и монтаж оборудования

    Электромонтажные работы
    Монтаж отопления
    Монтаж водоснабжения
    Монтаж канализации

    Отделочные работы в деревянном доме

    Деревянные окна
    Обслуживание деревянных домов
    Дизайн интерьера деревянных домов
    Акция до конца января 2026 года
    Уникальная акция от «ЭКО-ТЕХ»: рассрочка на строительство дома!
    Эко-тех индивидуальный проект дома и бани
    Скидка 5% на монтаж коммуникаций, при заказе отделки
    Аудит строительной сметы
  • О нас
    О ГРУППЕ КОМПАНИЙ ЭКО-ТЕХ
    О компании
    Почему мы
    Как мы работаем
    Заготовка леса
    Собственное производство
    Партнеры
    Цены на материалы
    Новости компании
    Наша команда
    История компании ЭКО-ТЕХ
    Документы и сертификаты
    В чем отличие домов ЭКО-ТЕХ от других строительных компаний

    ВАКАНСИИ ЭКО-ТЕХ

    Присоединяйтесь к нам!

    ОТЗЫВЫ КЛИЕНТОВ

    Уже доверили нам строительство

  • Контакты

    ЖДЕМ ВАС ЕЖЕДНЕВНО НА НАШИХ ПЛОЩАДКАХ:

    Выставочная площадка деревянных домов Экотехстрой в Москве, МКАД 51 км
    Выставочная площадка деревянных домов Экотехстрой в Наро-Фоминске
    Производственный комплекс Экотехстрой Архангельская область
    Продажа пиломатериалов на площадке Экотехстрой
    Большой склад площадка, продажа пиломатериалов в Наро-Фоминске

  • 8 (800) 333-9191

  • Позвоните мне

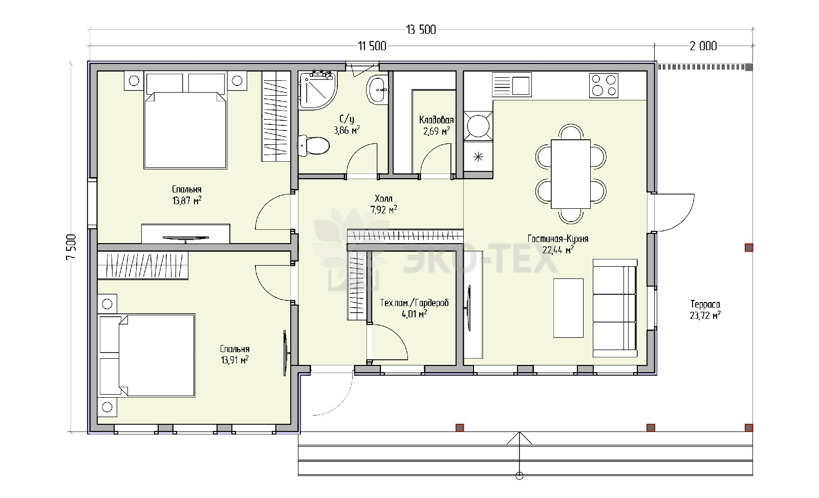
Каркасный дом Магнолия

Опублековано 10 июня 2023 в 1600 × 973, Проект дома «Магнолия»
Каркасный дом Магнолия

Каркасный дом Магнолия

Комментарии и обратные ссылки отключены.
← Предидущее
Далее →
Новинки
  • Одноэтажный дом из клеенного бруса "Благовещенск" Одноэтажный дом из клеенного бруса "Благовещенск"
  • Одноэтажный каркасный дом "Смородина" Одноэтажный каркасный дом "Смородина" 7 992 000,00 ₽
  • Трехэтажный дом из бруса "РУБЛЁВО" Трехэтажный дом из бруса "РУБЛЁВО"
  • Одноэтажный каркасный дом "Лилия" Одноэтажный каркасный дом "Лилия" 7 118 000,00 ₽
О ЭКО-ТЕХ
Строим надежные и экологичные деревянные дома любой сложности из Архангельского леса уже более 20 лет.

ВРЕМЯ РАБОТЫ
Будни с 10:00 до 19:00
Выходные с 11:00 до 18:00



Новости ЭКО-ТЕХ
Министр природных ресурсов и ЛПК Архангельской области посетила производство ЭКО-ТЕХ
16
Авг
С Днём строителя! Делимся этапами строительства нового дома на нашей выставке
10
Авг
Генеральный директор ГК ЭКО-ТЕХ, Алимов Э.Т., вошел состав официальной делегации правительства Архангельской области на 10-м Российско-Армянском межрегиональном форуме
09
Июн
ЭКО-ТЕХ на XVI международном экономическом форуме «Россия – Исламский мир: KAZANFORUM» в Казани
17
Май
От заготовки до готового продукта: обзор производства ЭКО-ТЕХ, фото
06
Май
Наши проекты
  • Дома из клееного бруса
  • Дома и бани ручной рубки
  • Дома из оцилиндрованного бревна
  • Каркасные дома
  • Проекты бань
  • Строительство элитных коттеджей
  • Проекты для гостиничного бизнеса
  • Дом «Троицк» клееный брус комплектация под ключ
  • Каркасный дом “Брусника” – комплектация под ключ
  • Акции и специальные предложения
Полезная информация
  • О компании
  • Контакты
    • Выставочная площадка деревянных домов Экотехстрой в Москве, МКАД 51 км
    • Выставочная площадка деревянных домов Экотехстрой в Наро-Фоминске
  • Собственное производство
  • Вакансии ЭКО-ТЕХ
  • Новости ЭКО-ТЕХ
  • Отзывы о нас
  • Кредитные программы
  • Остерегайтесь недобросовестных застройщиков торгующих не своими проектами
  • В чём отличие домов, построенных компанией «Эко-тех», от других строительных компаний?
  • Часто задаваемые вопросы
    • Полезная информация
  • Контакты
  • Политика конфиденциальности
  • Согласие на рассылку
  • Согласие на обработку персональных данных
Copyright 2026 © ЭКО-Тех   Создание и продвижение сайта
  • Проекты
    • Проекты домов и бань
      • Дома из оцилиндрованного бревна
      • Дома и бани ручной рубки
      • Дома из клееного бруса
      • Каркасные дома
      • Проекты бань
      • Загородные дома премиум класса
      • Проекты для гостиничного бизнеса
    • Акции и специальные предложения
      • Дом «Троицк» клееный брус комплектация под ключ
      • Каркасный дом “Брусника” – комплектация под ключ
      • Кредитные программы
  • Наше производство
  • Портфолио
    • Видео галерея
    • Фото построенные дома и бани
    • Выставочные площадки фото
    • Производство ЭКО-ТЕХ фото, видео
    • Отделка и коммуникации фото
    • Этапы строительства фото
  • Услуги
    • Строительство домов и бань
    • Проектирование домов и бань
    • Строительство деревянных домов из бревен большого диаметра
    • Устройство фундаментов
    • Внутренние инженерные сети и монтаж оборудования
      • Электромонтажные работы
      • Монтаж отопления
      • Монтаж водоснабжения
      • Монтаж канализации
      • Отделочные работы в деревянном доме
        • Деревянные окна
        • Обслуживание деревянных домов
        • Дизайн интерьера деревянных домов
  • О нас
    • О компании
      • Новости ЭКО-ТЕХ
      • Как мы работаем
      • Почему мы
      • Заготовка леса
      • Цены на материалы
      • В чём отличие домов «Эко-тех» от других строительных компаний?
      • Отзывы наших клиентов о компании Эко-тех
      • Участие в выставках
      • Наша команда
        • Вакансии ЭКО-ТЕХ
        • История компании Эко-тех
        • Партнеры
  • Контакты
    • Выставочная площадка деревянных домов Экотехстрой в Москве, МКАД 51 км
    • Выставочная площадка деревянных домов Экотехстрой в Наро-Фоминске
    • Производственный комплекс Экотехстрой Архангельская область
    • Большой склад площадка, продажа пиломатериалов в Наро-Фоминске

    Заявка на обратную связь

    Оставьте заявку и мы свяжемся с вами в ближайшее время




    ОБРАТНЫЙ ЗВОНОК

    Отправьте запрос и наши консультанты свяжутся с вами, в удобное для вас время.

      Нажимая кнопку "Отправить" вы подтверждаете свое согласие на обработку персональных данных в соответствии с политикой конфиденциальности

       

      Мы используем cookie для улучшения работы сайта. Как это работает.